首页
AI出图
更多
模板
元素
插画
背景
视频
办公
在线设计
全部
全部
设计稿
摄影图
元素库
VIP素材
搜索
29结果
或
找人设计
全部分类
CAD
3D模型
展开
全部类型
VIP
滨水公园景观驳岸断面图 剖面图
立即下载
滨水驳岸SU图集
立即下载
枯山庭院节点铺装示意大样
立即下载
水池剖面图
立即下载
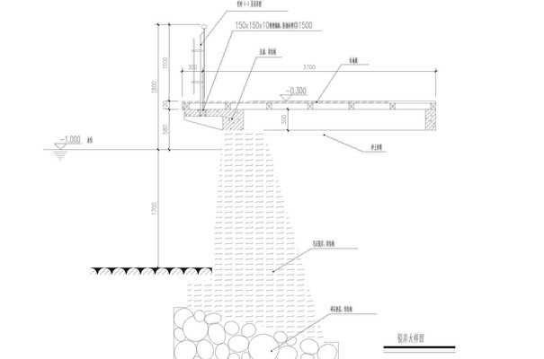
驳岸结构做法
立即下载
眺台驳岸做法
立即下载
小溪施工图做法
立即下载
生态驳岸施工图
立即下载
搜索结果不满意?换个搜索词试试
生态驳岸剖面
剖面
房子剖面
建筑剖面
水果剖面
或者
提交您的需求
生态驳岸剖面
剖面
房子剖面
建筑剖面
水果剖面
地球剖面